
用途:
4-79系列离心风机可以当作普通的厂房和建筑的屋内通风以及换气的装置,也可以和空调净化设备一起使用。气体中不可以有粘性的东西,尘土还有硬质的颗粒物质含量不能超过150mg/m?。气体的温度在不高于80℃的情况下,该气体可以作为输入气体,也可以是输出气体。
型式:
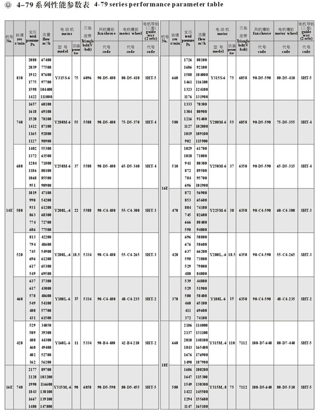
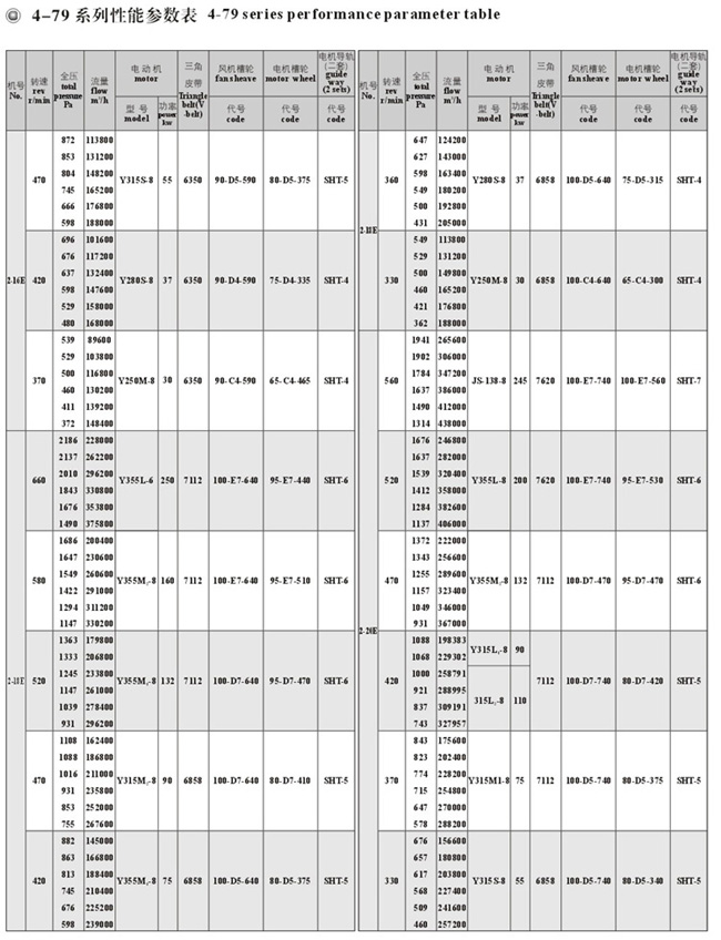
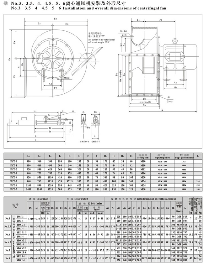
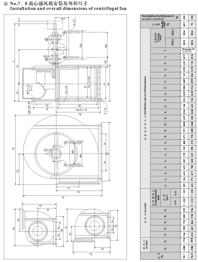
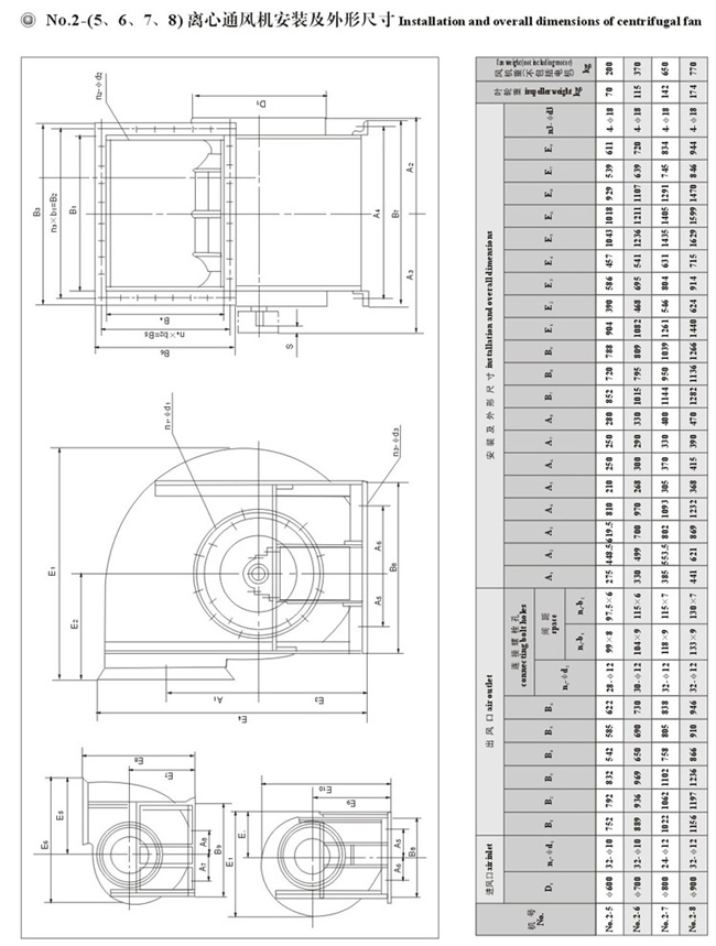
4-79系列离心风机产品规格从3#~20#共有20个机号。3-6#为A式传动,出风口角度调整范围0°~225°。间隔为45°;7~8#为C式传动,10~20#为E式传动,出风口角度均可制成所需固定角度;5~20#可制成双吸风机。
结构:
风机主要由叶轮、机壳、集风器、轴承箱、轴承座及传动部分所组成。
叶轮由后倾圆弧型叶片、曲线型轮盖和平板型轮盘及轮毂组成,并经过动、静平衡校正,具有良好空气动力性能和运转的平稳可靠性。
机壳采用优质钢板蜗线型焊接而成,≤12#机壳为整体式,≥14#的机壳沿中分水平面分为两半,由螺栓连接。
主轴采用优质碳钢制成,经调质处理在设计上有可靠的安全性和抗疲劳性。
集风器、轮盖均以拉伸工艺一次成型,具有光滑流线型表面。
轴承箱、座为优质铸铁件加工而成,配用调心轴承,采用机油或油脂润滑。
三角带传动系统,按所需性能优化配警。(三角带一般选用国产,亦可根据用户特殊选用进口产品)。单机三角带长度按样本参数。
订货时应标注清楚风机型号、规格、用途、传动方式、流量、全压(静压)旋转方向及风口角度,以及电动机的型号、极数、规格等,如有特殊要求订货时提出。本公司保留样本更改权,就不另行通知。


















